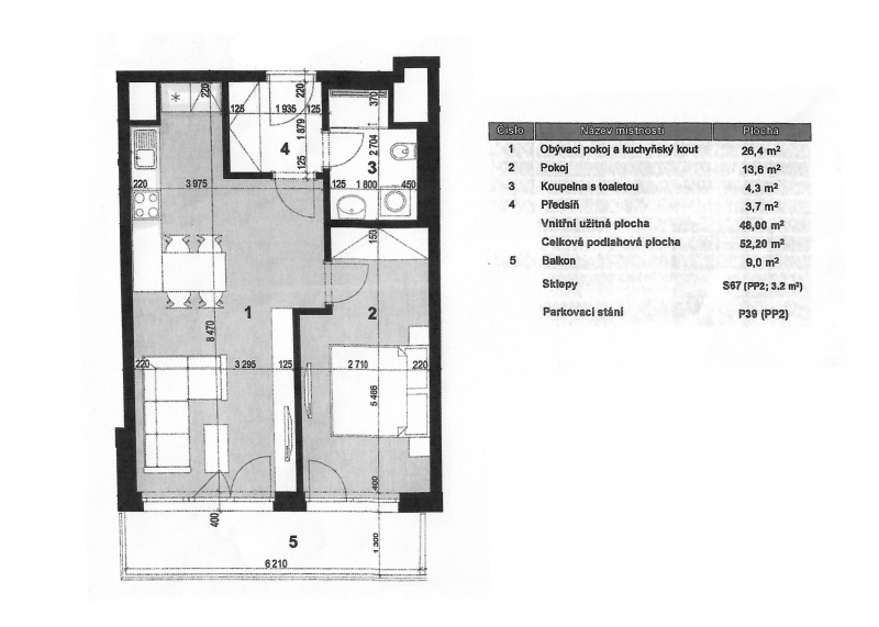
Pronájem novostavby 2+kk , 52 m2 s terasou a garáží
19000 Praha 9, VysočanyID: 234929
24 500 Kč za nemovitost
+ garáž 2.500, - Kč+ poplatky 4.300, - Kč + elektřina+ provize RK
Exkluzivně Vám nabízíme k pronájmu zcela novou bytovou jednotku o dispozici 2+kk, s podlahovou plochou 52 m2 nacházející se ve 2. nadzemním podlaží v rezidenčním projektu, který se nachází v atraktivní lokalitě Prahy 9 - Vysočany, přímo u tramvajové zastávky a blízko vlakového nadrží Libeň. Projekt… Více informací
Přehled
| Dispozice | 2+kk |
|---|---|
| Celková podlahová plocha | 52 m2 |
| Číslo podlaží v domě | 2 |
| Počet podlaží objektu | 6 |
| Druh objektu | Cihlová |
| Vybavení domu | Výtah, terasa, sklep |
| Orientace | Východ |
| Vlastnictví | Osobní |
| Stav objektu | Novostavba |
| Rok rekonstrukce | 2026 |
| Rok kolaudace | 2026 |
| Topení | Ústřední - dálkové |
| Teplá voda | Ústřední |
| Energetická náročnost | B |



















