VLTAVÍN REALITY A FINANCE s.r.o.

Navigace Zavolejte nám
602 402 502

Pronájem bytu 2+1, Benediktská, Praha 1

11000 Praha 1, Staré Město

ID: 233954

28 000 za měsíc

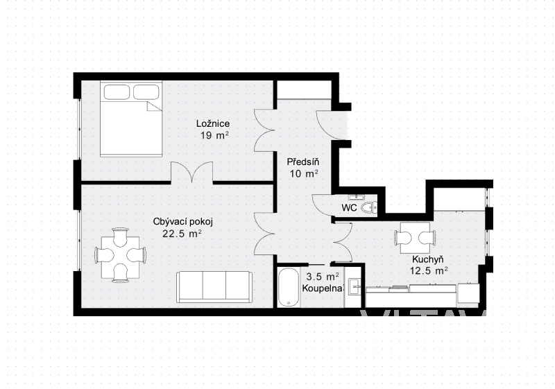
Exkluzivně Vám nabízíme k pronájmu byt 2+1 o výměře 63 m2;, situovaný ve 2. nadzemním podlaží činžovního domu v jedné z nejžádanějších lokalit v samém centru Prahy 1 - v ulici Benediktská. Dispozice bytu zahrnuje vstupní předsíň, samostatnou kuchyni, obývací pokoj, ložnici, koupelnu s vanou a WC.… Více informací

Pronájem bytu 2+1, Benediktská, Praha 1

Přehled

Dispozice 2+1
Celková podlahová plocha 66 m2
Číslo podlaží v domě 2
Počet podlaží objektu 5
Druh objektu Cihlová
Vybavení domu Výtah
Orientace Jih
Vlastnictví Osobní
Stav objektu Dobrý
Rok rekonstrukce 2010
Vybaveno Nezařízeno
Topení Lokální - plynové
Teplá voda Kotel, bojler
Energetická náročnost G Uvedeno dočasně vzhledem k novele zákona č. 406/2000 Sb. O hospodaření s energií.

Po dodání energetického štítku bude uvedena skutečná úspornější energetická třída této nemovitosti.

Celý popis

Exkluzivně Vám nabízíme k pronájmu byt 2+1 o výměře 63 m2;, situovaný ve 2. nadzemním podlaží činžovního domu v jedné z nejžádanějších lokalit v samém centru Prahy 1 - v ulici Benediktská. Dispozice bytu zahrnuje vstupní předsíň, samostatnou kuchyni, obývací pokoj, ložnici, koupelnu s vanou a WC. Pokoje jsou průchozí. Byt prošel renovací v roce 2010 - je vybaven novými špaletovými okny, dřevěnými parketami v obytných místnostech a dlažbou v kuchyni a koupelně. Vytápění zajišťuje plynový kotel. V koupelně je k dispozici prostor pro pračku a dvojité umyvadlo. Kuchyň je plně vybavena spotřebiči: myčka nádobí, lednice, varná deska a trouba, mikrovlnná trouba. Byt nabízí komfortní a klidné bydlení v historickém centru města s výbornou dopravní dostupností. Tramvajová zastávka je vzdálena pouhé 3 minuty od domu, metro stanice Náměstí republiky je do 5 minut pěšky, stejně jako kompletní občanská vybavenost, která je v těsné blízkosti domu. Bytová jednotka je volná od 01.03.2026. Poplatky jsou 3.500, - Kč + plyn a elektřina ( převádí se na nájemce )+ provize RK Byt je ideální pro jednotlivce nebo pár. Preferujeme dlouhodobý pronájem.

Zaujala Vás naše
nabídka? Máte nějaký
dotaz? Kontaktujte
makléře:

Marie Cioleková

602 402 502
ciolekova@vltavinreality.cz

Kontaktní formulář