Pronájem bytu 2+1, 68 m2, Praha 7 - Holešovice
17000 Praha 7, HolešoviceID: 234778
25 000 Kč za měsíc
+ popl. cca 3.340 Kč + el. a plyn + kauce (2 nájmy) + provize (1 nájem + DPH)
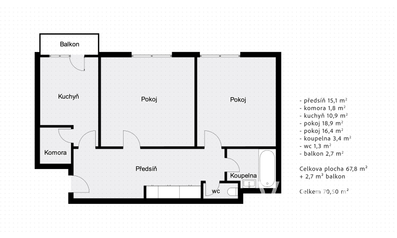
Exkluzivně Vám nabízíme k pronájmu byt 2+1 o výměře 68 m2, situovaný v 5.patře (6.NP) činžovního domu s výtahem v klidné lokalitě Holešovic poblíž přístavu. Dispozice bytu zahrnuje vstupní předsíň, samostatnou kuchyň se spíží, obývací pokoj, ložnici, koupelnu s vanou a WC, Pokoje i kuchyň jsou… Více informací
Přehled
| Dispozice | 2+1 |
|---|---|
| Celková podlahová plocha | 68 m2 |
| Číslo podlaží v domě | 4 |
| Počet podlaží objektu | 7 |
| Druh objektu | Cihlová |
| Vybavení domu | Balkon, výtah |
| Orientace | Jihozápad |
| Vlastnictví | Osobní |
| Stav objektu | Dobrý |
| Vybaveno | Nezařízeno |
| Topení | Ústřední - dálkové |
| Teplá voda | Ústřední |
| Energetická náročnost |
G
Uvedeno dočasně vzhledem k novele zákona č. 406/2000 Sb. O hospodaření s energií. Po dodání energetického štítku bude uvedena skutečná úspornější energetická třída této nemovitosti. |























